Banner Gradjenje AD

Ponuda »

PP2

-

Površina: 17.00 m2

Poslovni prostor nalazi se u prizemlju  objekta i ima direktan pristup sa terena.

PP1

O-5 - Pale

Površina: 52.23 m2

Poslovni prostor nalazi se u prizemlju objekta i ima direktan pristup sa ulice.

PP2

O-5 - Pale

Površina: 94.00 m2

Poslovni prostor nalazi se na prvom spratu i ima zaseban ulaz u prizemlju objekta.

PP1

-

Površina: 94.00 m2

Poslovni prostor nalazi se u prizemlju i suterenu objekta i ima drektan pristup sa ulice.

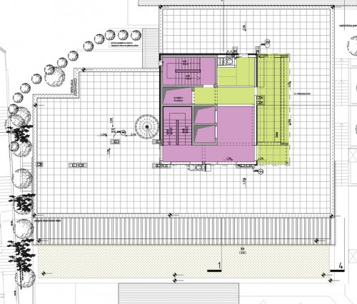
9. Krovna etaža

G-12 Poslovni objekat - Istočno Sarajevo

Površina: 165.15 m2

PP1

G-10 - Pale

Površina: 182.00 m2

Poslovni prostor se nalazi u prizemlju i ima direktan pristup sa ulice.

PP1

G-8 - Pale

Površina: 211.23 m2

Poslovni prostor se nalazi u prizemlju objekta i ima direktan pristup ulici.

PP4

G-8 - Pale

Površina: 242.00 m2

Poslovni prostor nalazi se na trećem spratu objekta. Ima vertikalnu komunikaciju liftom i stepeništem kroz glavni ulazni hol zgrade.

PP3

G-8 - Pale

Površina: 248.00 m2

Poslovni prostor nalazi se na drugom spratu poslovnog objekta. Ima vertikalnu komunikaciju liftom i stepeništem kroz glavni ulazni hol u zgradi.

PP3

G-9 - Istočno Sarajevo

Površina: 257.00 m2

Poslovni prostor nalazi se u prizemlju objekta sa direktnim pristupom sa ulice i parkinga.

PP2

G-8 - Pale

Površina: 327.00 m2

Poslovni prostor se nalazi na prvom spratu objekta. Ima vertikalnu komunikaciju liftom i stepenište, kroz glavni ulazni hol u zgradi.

8. Povučena etaža

G-12 Poslovni objekat - Istočno Sarajevo

Površina: 454.39 m2

Na povučenoj etaži nalazi se poslovni prostor.

3. Međuetaža

G-12 Poslovni objekat - Istočno Sarajevo

Površina: 478.87 m2

Međuetaža čini galerijski prostor poslovne namjene.

4. Mezanin

G-12 Poslovni objekat - Istočno Sarajevo

Površina: 511.61 m2

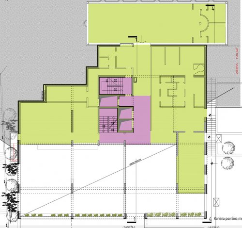
6. Prvi sprat

G-12 Poslovni objekat - Istočno Sarajevo

Površina: 512.66 m2

Prvi sprat objekta čini poslovni prostor.

7. Drugi sprat

G-12 Poslovni objekat - Istočno Sarajevo

Površina: 512.66 m2

Drugi sprat objekta čini poslovni prostor.

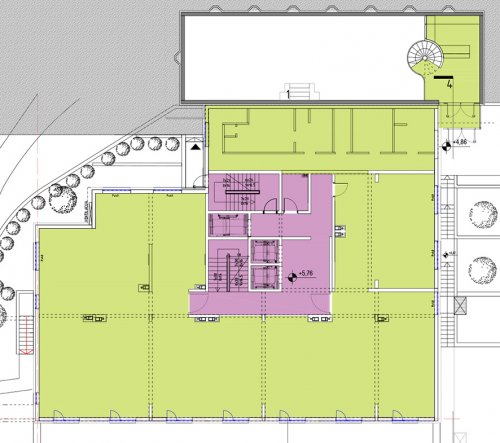
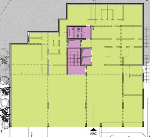
5. Visoko prizemlje

G-12 Poslovni objekat - Istočno Sarajevo

Površina: 529.76 m2

Visoko prizemlje objekta čini poslovni prostor i pristupa mu se direktno iz parka.

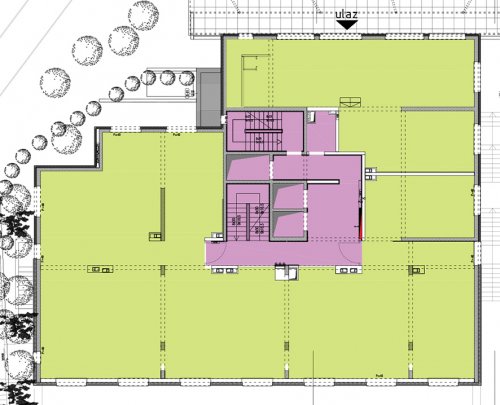
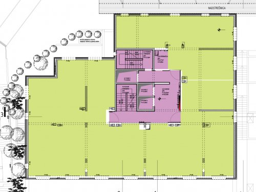
2. Prizemlje

G-12 Poslovni objekat - Istočno Sarajevo

Površina: 585.59 m2

Prizemlje objekta čini poslovni prostor i pristupa mu se direktno sa Ulice Akademika Petra Mandića.

1. Garaža

G-12 Poslovni objekat - Istočno Sarajevo

Površina: 596.98 m2

Podrum objekta čini garaža.